Fry's Spring Filling Station
Until November 2023, Fry’s Spring Filling Station operated as a restaurant.
Since being built in 1931, Fry’s Spring has been expanded significantly but still preserves it’s original aesthetic.
Original and Subsequent Owners
From the Written Historical and Descriptive Data recorded in 1981 by the Historic American Buildings Survey:
The Fryโs Spring Filling Station was constructed in 1931 by Ernest R. Duff. Duff purchased the lot in 1925 from Gertrude C. Rubin. Rubin bought a parcel of land, including this site, in 1921 from the Commerce Realty and Insurance Corporation. In 1922, following a subdivision of the land, she sold the eastern lot to J. F. Bowyer. The remaining western lot was sold to Duff in 1925.
In 1954 Ernest Duff sold the property to the Pure Oil Company of Ohio. The Pure Oil Company merged with the Union Oil Company of California in 1965. In 1977, the present owner, E. L. Houchens, purchased the station from the Union Oil Company.
Ernest Duff apparently leased the station to the Pure Oil Company, which had the option to buy it. Following Pure Oil Companyโs purchase of it in 1954, according to E. L. Houchens, the station was leased to a Mr. Settle, then a Mr. Gibson, and finally, to a Mr. Toms. Houchens purchase ended the succession of leases.
Description of the Exterior
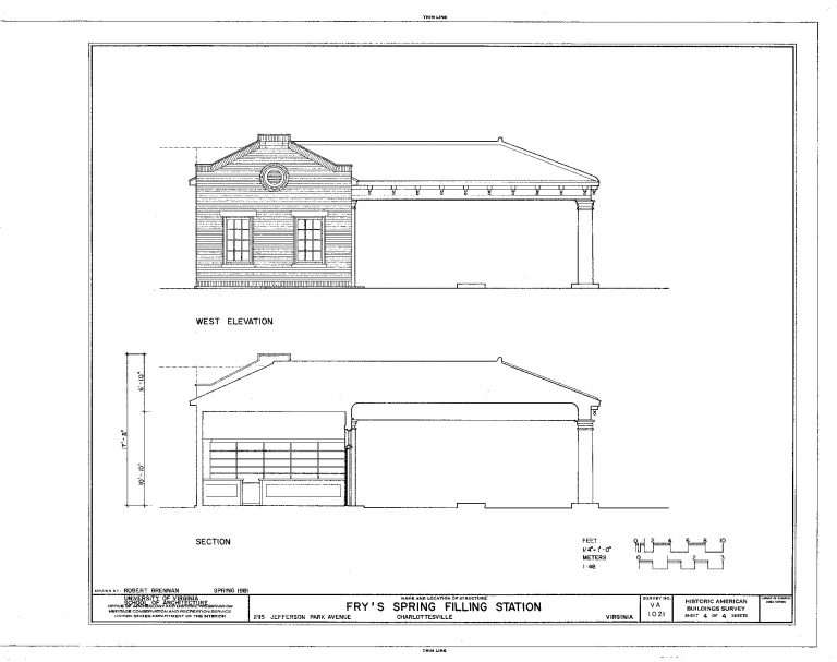
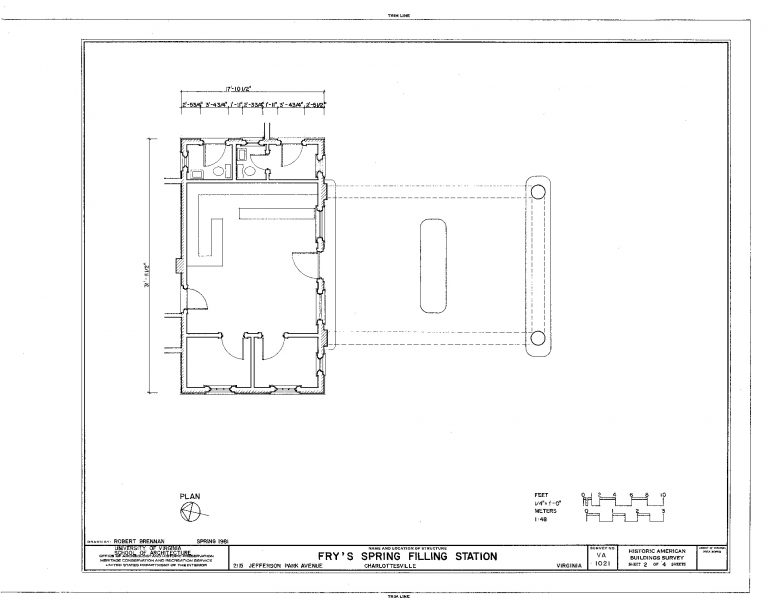
This one-story building measures 31 feet 11 1/2 inches long by 17 feet 10 1/2 inches wide. A porte-cochere extends 26 feet 11 inches to the south and covers the pump area.
This structure appears to be supported by a slab on grade.
The exterior walls are brick veneer with concrete lintels and sills at the openings. The red brick remains unpainted while the wood and concrete trim are painted white.
The building is wood framed with composite wood beams likely spanning the pump area.
There seems to have been a chimney at one point, probably for a pot bellied stove.
Sorry, no records were found. Please adjust your search criteria and try again.
Sorry, unable to load the Maps API.






